Thứ năm, 18/01/2024 10:42

Chế tạo dây chuyền sản xuất gỗ nhựa tự động hóa cao bằng nguồn lực trong nước

TS Vũ Quang Hà

Công ty TNHH Công nghiệp Quang Nam

Gỗ nhựa là một sản phẩm có nhiều ưu điểm và thân thiện với môi trường. Tuy nhiên tại Việt Nam, hoạt động sản xuất công nghiệp gỗ nhựa chưa thực sự phát triển do phải nhập khẩu dây chuyền, thiết bị với giá cao. Để góp phần giải quyết khó khăn này, được sự hỗ trợ từ Chương trình Đổi mới công nghệ quốc gia đến năm 2030, Công ty TNHH Công nghiệp Quang Nam đã tiến hành nghiên cứu, chế tạo thành công dây chuyền sản xuất gỗ nhựa có tính tự động hóa cao với nguồn lực hoàn toàn trong nước.

Tiềm năng của ngành công nghiệp gỗ nhựa

Gỗ nhựa là một loại vật liệu composite được tổ hợp từ 2 thành phần chính là gỗ và nhựa, thông thường loại vật liệu này sẽ chứa khoảng 50% gỗ (có thể được sử dụng ở dạng hạt hoặc dạng sợi rất ngắn), polyme nhiệt dẻo hoặc nhiệt rắn và một lượng nhỏ chất phụ gia giúp nâng cao đặc tính sản phẩm. Do có nhiều ưu điểm như: kháng nước, chống mối mọt, dễ gia công, không độc hại, bền, đẹp, chống cháy, khả năng tái sử dụng cao... nên gỗ nhựa ngày càng được người tiêu dùng ưa chuộng.

Quy mô thị trường của sản phẩm gỗ nhựa trên thế giới hiện nay đạt 5,69 tỷ USD, dự kiến đến năm 2030 sẽ đạt 12,22 tỷ USD [1]. Trong tương lai, sự phát triển của dân số trên thế giới sẽ luôn đi kèm nhu cầu xây dựng nhà ở, các công trình kiến trúc, công trình công cộng... Bên cạnh đó, càng phát triển, con người càng có ý thức bảo vệ thiên nhiên, môi trường và quan tâm nhiều hơn tới việc sử dụng các vật liệu thân thiện môi trường hoặc có thể tái chế.

Tại Việt Nam, thị trường gỗ nhựa cũng đang phát triển nhanh, dự báo đến năm 2025 nhu cầu sử dụng sàn gỗ công nghiệp trong nước đạt 5,56 triệu m2 [2]. Khi ngành gỗ nhựa phát triển, bên cạnh việc tạo thêm công ăn việc làm còn kéo theo sự phát triển của nhiều ngành sản xuất phụ trợ khác như: vận chuyển; gia công chế tạo; sản xuất bột gỗ, nhựa, chất phụ gia... Đặc biệt, Việt Nam hiện đang là 1 trong 10 nước hàng đầu về sản xuất và xuất khẩu đồ gỗ lớn nhất thế giới. Theo số liệu thống kê từ Tổng cục Hải quankim ngạch xuất khẩu gỗ và sản phẩm gỗ trong năm 2022 đạt 16 tỷ USD, tăng 8,1% so với năm 2021 [3].

Hiện tại, hàng năm ngành công nghiệp chế biến gỗ nước ta phải nhập khẩu từ 3,5-4 triệu m3 gỗ tự nhiên, trong khi lượng phế liệu trong sản xuất chế biến gỗ thường chiếm tỷ trọng từ 45-63% thể tích nguyên liệu [4]. Như vậy, lượng phế liệu gỗ khá lớn, là một nguồn nguyên liệu đầu vào thuận lợi cho ngành sản xuất gỗ nhựa. Ngoài ra, phế liệu chất dẻo từ các loại nhựa đồ dùng trong sinh hoạt hàng ngày ở Việt Nam rất đa dạng và phong phú. Hiện tại chưa có số liệu điều tra chính xác về lượng nhựa phế thải này, song theo kết quả điều tra năm 2015 của Viện Vật liệu Xây dựng, lượng nhựa phế thải trong rác thải sinh hoạt của Hà Nội khá cao, từ 7-8%. Nếu tính trung bình lượng rác thải của Hà Nội là 18.000 tấn/ngày thì chỉ tính riêng Hà Nội thải ra khoảng 120 tấn nhựa phế thải/năm. Như vậy, việc tận dụng gỗ và nhựa phế thải để sản xuất gỗ nhựa sẽ vừa giúp hạn chế rác thải nhựa, góp phần giảm thiểu ô nhiễm môi trường, vừa góp phần phát triển kinh tế, giải quyết nhu cầu việc làm cho người dân.

Chế tạo thành công dây chuyền sản xuất gỗ nhựa tự động hóa cao

Mặc dù ở trong nước đã có một số công trình nghiên cứu về gỗ nhựa (cấu trúc, vật liệu...) song hầu như chưa có nghiên cứu về công nghệ thiết kế chế tạo dây chuyền/thiết bị sản xuất gỗ nhựa. Các doanh nghiệp Việt Nam khi cần các dây chuyền/thiết bị này sẽ phải mua sản phẩm nhập khẩu với giá cao, dẫn đến giá thành sản phẩm gỗ nhựa chế tạo trong nước cũng cao. Bên cạnh đó, mỗi khi cần bảo trì, bảo dưỡng hoặc thay thế linh kiện, các doanh nghiệp cũng rất vất vả, tốn kém, lãng phí thời gian, thậm chí có thể bị ngừng nhịp độ sản xuất, gây trễ các đơn hàng... Ngoài ra, việc giá dây chuyền nhập khẩu đắt đỏ sẽ làm cho doanh nghiệp nhỏ và vừa khó tiếp cận, hoặc chỉ tiếp cận được một phần, dẫn đến khó đáp ứng các yêu cầu về sản phẩm chất lượng cao.

Để góp phần giải quyết các vấn đề nêu trên, Chương trình Đổi mới công nghệ quốc gia đến năm 2030 đã hỗ trợ Công ty TNHH Công nghiệp Quang Nam thực hiện đề tài “Nghiên cứu đổi mới dây chuyền, thiết bị công nghệ sản xuất sản phẩm gỗ nhựa phục vụ thị trường trong nước và xuất khẩu”. Thông qua đó, Công ty đã nghiên cứu, chế tạo thành công dây chuyền sản xuất gỗ nhựa có tính tự động hóa cao và làm chủ được quy trình công nghệ chế tạo sản phẩm gỗ nhựa.

Dây chuyền tự động hóa sản xuất gỗ nhựa do Công ty nghiên cứu, chế tạo có công suất 80÷100 kg/giờ, sản phẩm đầu ra là gỗ nhựa đạt tiêu chuẩn xuất khẩu.

Sơ đồ bố trí các máy trên dây chuyền sản xuất gỗ nhựa được mô phỏng bằng phần mềm.

Dây chuyền này có mức độ tự động hóa cao, từ khâu chuẩn bị nguyên liệu đầu vào cho đến đầu ra của sản phẩm. Dây chuyền có hệ thống máy phụ trợ vận chuyển và cân đo nguyên liệu, giúp quá trình pha trộn và chuyển tiếp các vật liệu phục vụ từng công đoạn diễn ra một cách thuận lợi và chính xác. Các máy và hệ thống vận chuyển được điều khiển tự động, căn chỉnh tốc độ hoạt động phù hợp và ăn khớp nhau, sao cho lượng nguyên liệu đầu ra của máy trước bằng lượng nguyên liệu có thể xử lý của máy sau, giúp hệ thống hoạt động nhịp nhàng, năng suất cao.

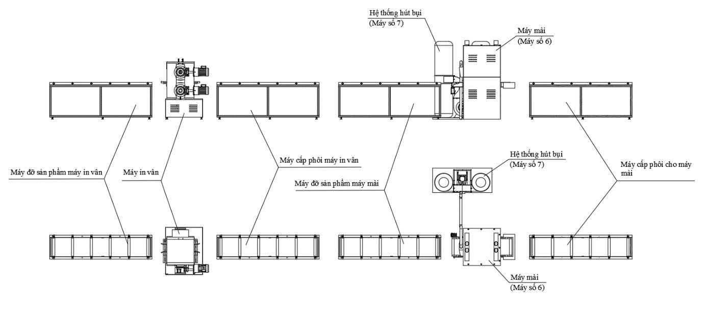
Dây chuyền sản xuất được chia thành 2 nhóm máy: tạo hình (hình 2) và tạo họa tiết (hình 3). Mỗi nhóm máy sẽ gồm các máy chính và máy phụ trợ. Máy chính có chức năng gia công sản xuất chính, máy phụ trợ đi theo thay thế con người thực hiện các chức năng hỗ trợ cho máy chính như: vận chuyển sản phẩm, hỗ trợ gia công, tăng độ chính xác cho máy chính, hút bụi, làm mát…

Hình 2. Hình chiếu đứng và hình chiếu ngang nhóm máy tạo hình.

Hình 3. Hình chiếu đứng và hình chiếu ngang nhóm máy tạo họa tiết.

Hệ thống điều khiển được lặp đặt tại các tủ điện cục bộ, dễ dàng thay đổi hoặc chỉnh sửa nhịp sản suất. Tại bộ điều khiển trung tâm, các thông tin hoạt động của các máy được gửi về giúp công nhân có thể kiểm soát và căn chỉnh được việc sản xuất. Trong dây chuyền này chỉ cần số lượng công nhân nhỏ, chủ yếu thực hiện việc giám sát dây chuyền.

Máy ép đùn hai trục vít với bộ phận cải tiến phủ trực tiếp lớp bề mặt lên sản phẩm trong quá trình ép đùn - sản phẩm do Công ty TNHH Công nghiệp Quang Nam nghiên cứu chế tạo.

Dây chuyền đã được Công ty Công ty TNHH Quang Nam ứng dụng trong thực tiễn sản xuất, mang lại hiệu quả tốt hơn cả về năng suất và chất lượng so với trước. Sản phẩm đầu ra đáp ứng các tiêu chuẩn khắt khe của khách hàng trong nước và quốc tế.

TÀI LIỆU THAM KHẢO

[1] Verified Market Research (2023), Global Wood Plastic Composite Market Size By Type (Polyvinylchloride, Polypropylene), By Application (Building And Construction, Automotive Components), By Geographic Scope And Forecast, https://www.verifiedmarketresearch.com/product/wood-plastic-composite-marke/, accessed 1 December 2023.

[2]  Sannhaminh (2022), Dự báo thị trường sàn gỗ công nghiệp Việt Nam trong năm 2022-2025, https://sannhaminh.com/du-bao-thi-truong-san-go-cong-nghiep-viet-nam-trong-nam-2022-2025-n44.html, accessed 5 December 2023.

[3] Bộ Công Thương (2023), Báo cáo Xuất nhập khẩu Việt Nam 2022, https://trungtamwto.vn/file/22356/bao-cao-xuat-nhap-khau-viet-nam-nam-2022.pdf, truy cập  10/10/2023.

[4] Lê Xuân Tình (2010), Khoa học gỗ, Nhà xuất bản Nông nghiệp, Hà Nội, 98tr.

 

 

 

 

 

Đánh giá

X
(Di chuột vào ngôi sao để chọn điểm)